Manøgade 10, 4. tv., 2100 København Ø - Billed

Kontakt os

Bestil fremvisning

Bestil salgsmateriale

Giv et bud

Manøgade 10, 4. tv., København Ø

Solgt

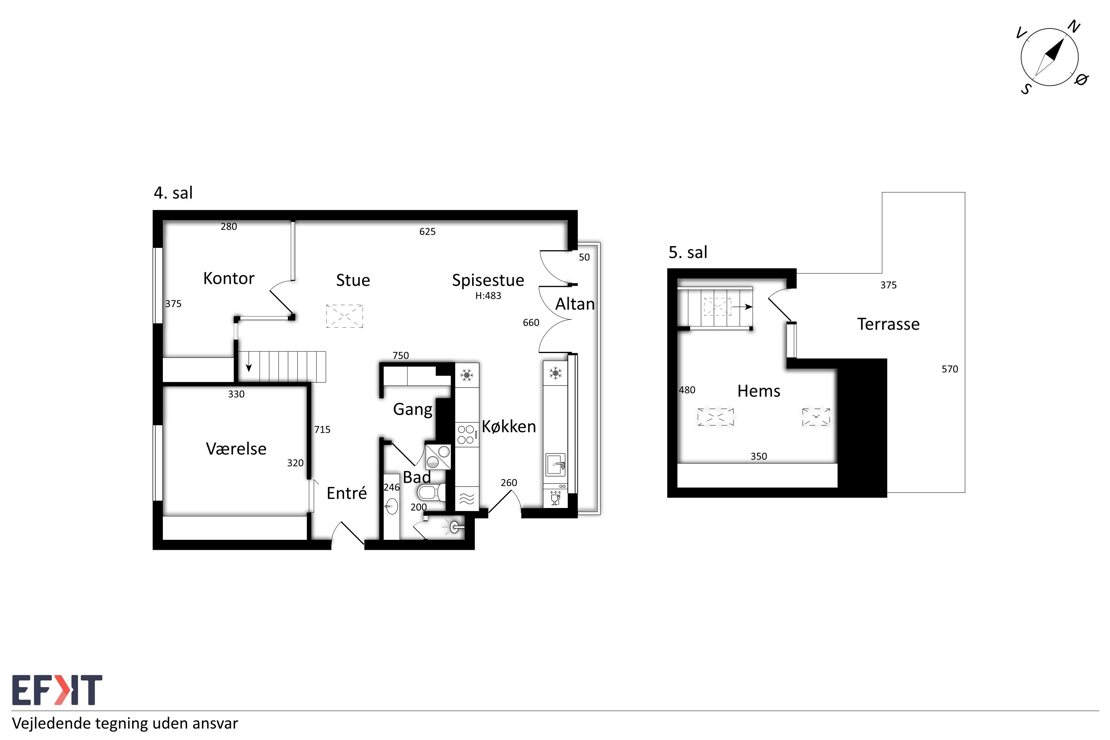
93 ETAGEMETER EKSKLUSIV PENTHOUSE + CA. 20 M2 TAGTERRASSE I HJERTET AF ØSTERBRO

Velkommen til Manøgade - Her får du 2 plan med en genial planløsning, der rummer et stort køkkenalrum med adgang til altan, 3 værelser, badeværelse og fordelingsgang. På 5. etage er der adgang til tagterrassen. 5. etage kan anvendes som stue eller værelse efter behov. Denne topmoderne og toptjekkede penthouse indeholder et væld af detaljer, der er gennemgående i alle kvadratmeter og kubikmeter. Herunder brede egetræsplanker, specieldesignet køkken, snedkerlavede skabe i alle rum, håndbyggede New Yorker vægge, trappe og gelænder i stål, egetræsbjælker, massive egetræs fodpaneler, messing armaturer, 1x1 meter betonfliser på badeværelset, gulvarme på hele 4. etage, genveks ventilationsanlæg, indbyggede spots overalt, store vinduespartier dørpartier (der kan åbnes helt op), 2 store kviste og 5 velux ovenlysvinduer, der naturligvis giver et fantastisk lysindfald i penthouselejligheden. Køkkenet er et specieldesignet og tilpasset JKE Køkken med masser af tilvalg. Blandt andet snedkerskuffer og overskabe, VIPP greb, Quooker med CUBE i messing, Miele vinkøleskab m.v. Fra det store køkkenalrum er der adgang til altanen, værelse, fordelingsgang med adgang til master bedroom og badeværelse, samt New Yorker-trappeløb der fører os op til 5. etage med endnu et rum – oplagt til kontor eller gæsteværelse - og tagterrassen, hvor solen kan nydes. Der er 3 gode værelser. Alle med indbyggede snedkerlavede skabe. Heraf Master bedroom som selvfølgelig er det største værelse. Derudover værelse med New Yorker væg og værelse på hemsen med ovenlysvinduer og nem adgang til tagterrassen. Badeværelset er med 1x1 meter betonfliser, messing armaturer, bademøbel, vaskesøjle m.v. Fordelingsgangen og entréen er ligeledes spækket med flotte detaljer, snedkerlavede skabe og opbevaring til sko og overtøj. Ejendommen, der er opført i 1914, fremstår flot og præsentabel i sin byggestil. Ejendommen er meget velholdt med blandet andet nyere naturskiffer-tag, nyere faldstammer, nyere vandrør, nyere pumpeanlæg, der leverer højt vandtryk, nyere renoveret facade og andelsnet. Til ejendommen hører et stort og skønt gårdmiljø og ydermere medfølger der til lejligheden et stort kælderrum til opbevaring. Bemærk de lave ejerudgifter, der afspejler en særdeles veldrevet ejerforening. Beliggende på Østerbro, hvor ejendommene og vejtræerne pryder gadebilledet. Manøgade ligger få skridt fra rekreative områder som Fælledparken, gåafstand til kaffebarer, restaurant- og cafémiljø såsom populære Hahnemanns Køkken samt indkøbs- og transportmuligheder. Vejen er rolig med gode parkeringsmuligheder og ligger tæt på 2 Metrostationer, der gør det muligt at være overalt i København og Kastrup Lufthavn på under 20 minutter. Liebhaveri i særklasse, der er gennemgribende renoveret i bedste New Yorker-stil fra A-Z.

Manøgade 10, 4. tv., København Ø

Solgt

LIGNENDE BOLIGER